Grace Dieu Manor, Leicestershire

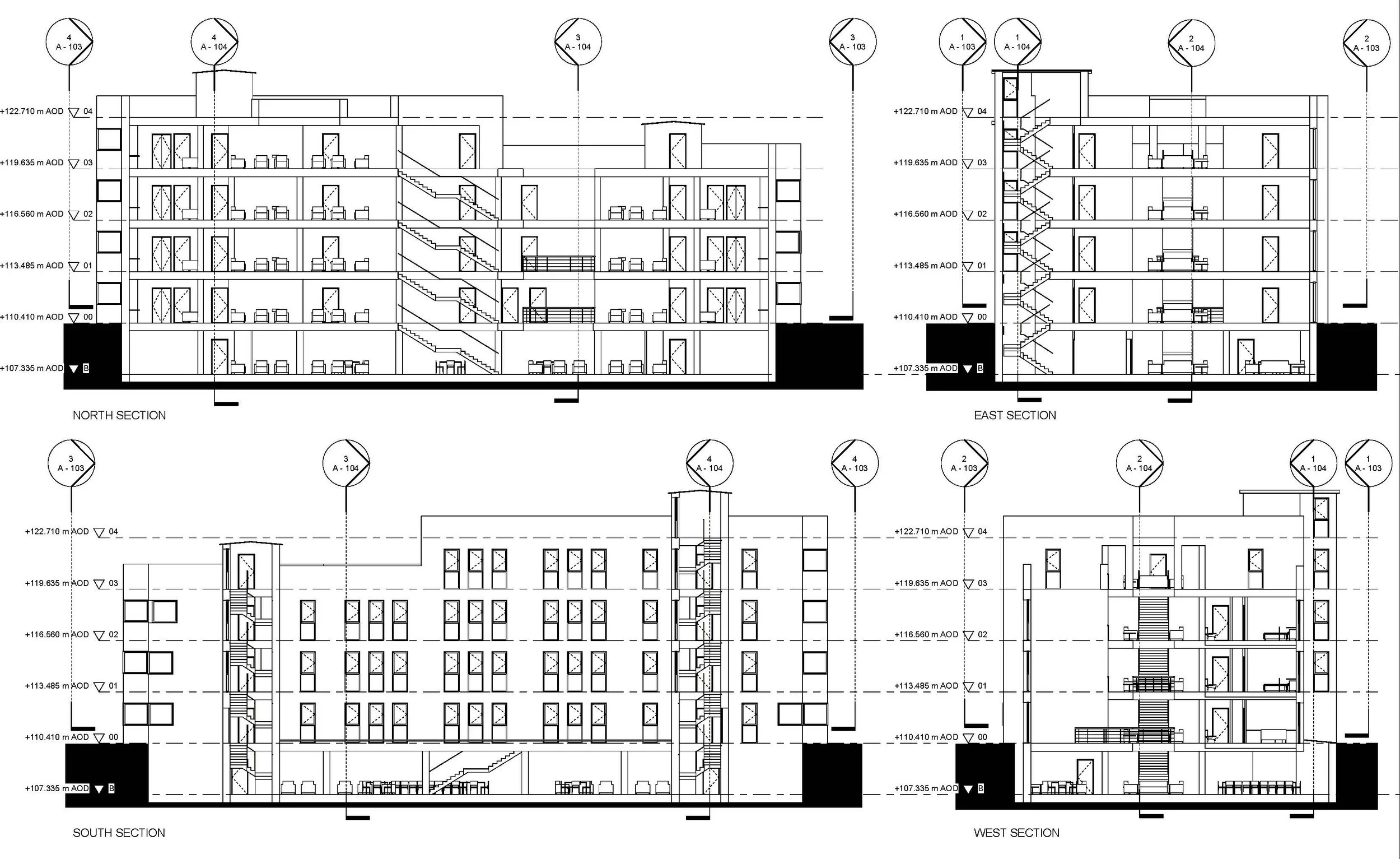
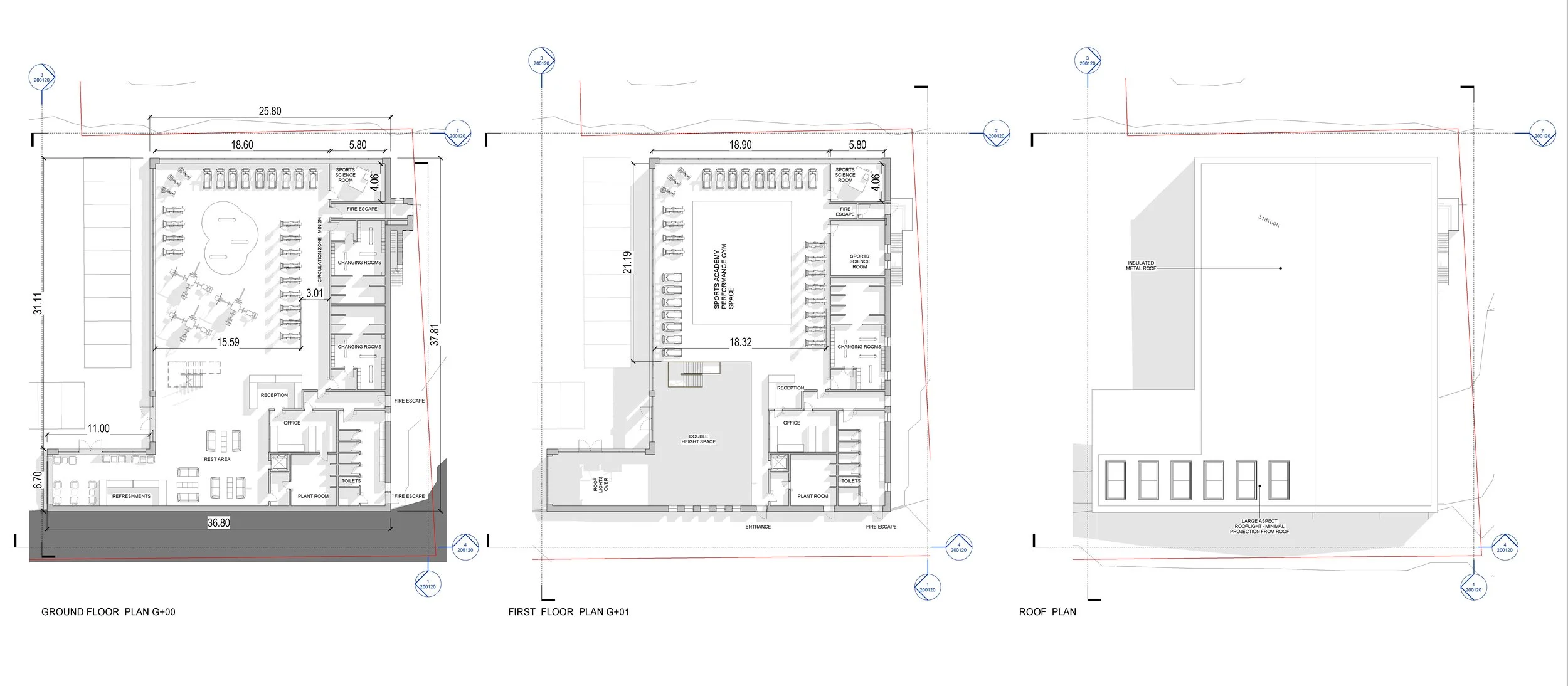
Following the closure of Grace Dieu Manor School, we were appointed by the new owners, FCV International Football Academy, to transform the historic estate—originally designed by renowned architects William Railton (c. 1833) and later expanded by the Gothic Revival master, A. W. N. Pugin (c. 1840s)—into a world-class training and residential facility.

The key challenge was to integrate the Academy's elite objectives of developing Premier League standard players within this established, historically rich site's fabric. Our work involves comprehensive planning for new student accommodation, the introduction of international-sized training pitches, a state-of-the-art gymnasium, and a crucial upgrade of select existing facilities. This project successfully preserves the architectural character of a manor with a profound legacy while creating a high-performance environment dedicated to cultivating global football talent.

Previous
Previous

ATEC Autotechnik